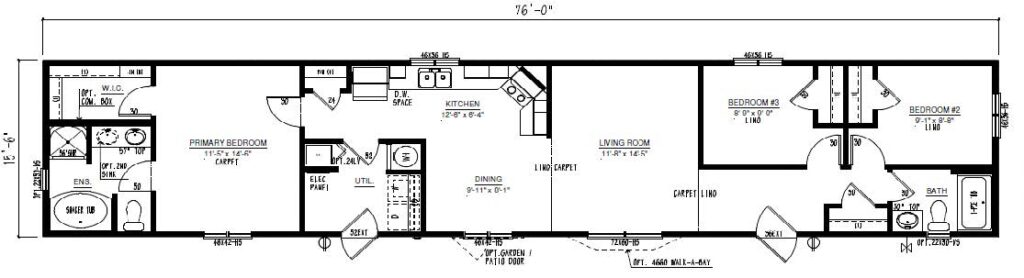
Welcome to the Birchwood! This 1,216 sq. ft. home is perfect for families with its 3 bedrooms and 2 bathrooms. We’ve given it a fresh new look with darker tones for a bold and modern feel. The semi-open concept design creates a roomy living area that’s great for hanging out or entertaining guests. The master bedroom is a cozy retreat with its own ensuite featuring a walk-in shower and a relaxing soaker tub. Come check out the Birchwood and see why it’s the perfect place to call home!
Book a Showing
Jandel Homes
34 Meadows Drive,
Morinville, AB T8R 2P7
- Price Starting at $258,700
- Size 1216 sq. ft.
- Bedrooms 3
- Bathrooms 2
- Garage Lot
- Two-car Concrete Driveway
- Lawn
- Fence
- 4’ X 5’ Front Step
- Landscaping
- 10’ X 12’ Deck
- Redesigned with a modern, bold design
- Semi-open concept layout offering a roomy and versatile living space
- Primary bedroom with a private ensuite, including a walk-in shower and soaker tub
- Large windows ensure plenty of natural light
- Thoughtful design combining functionality with modern aesthetics
Floorplan and Standard Specs



















